WEITERE PDF-FUNKTIONEN:
10 Argumente für progeCAD Professional
-
Unbefristete Lizenzen! Keine jährlichen Kosten. Sie entscheiden, wann Sie ein Upgrade durchführen möchten.
-
AutoCAD®-Anwender müssen sich nicht umgewöhnen.
-
Arbeiten Sie nativ mit DWG! Volle Kompatibilität mit AutoCAD® ohne Konvertierung
-
BIM-Projekte und -Objekte importieren (Autodesk Revit® and IFC)
-
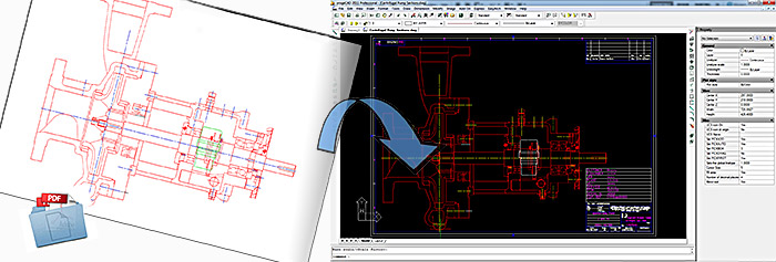
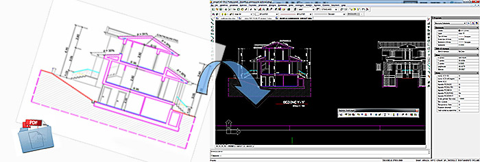
Enthalten ist eine PDF-zu-DWG-Konvertierung
-
Beeindruckende exklusive Zusatzfunktionen
-
Erstellen Sie im Handumdrehen Architekturlayouts mit dem parametrischen EasyArch-Plug-in
-
22.000 Blöcke sofort verfügbar + konfigurierbarer Blockmanager
-
Import/Export von Rvt, Rfa, IFC, STEP, IGES, SolidWorks, PDF, 3D PDF, DWF, 3DS, DAE, LWO, POV, Maya, OBJ, BMP, JPG, WMF, EMF, SVG
-
Inklusive professioneller Artisan Render Engine
Sie alle arbeiten mit progeCAD:
Teilen Sie Ihre DWG, konvertieren Sie DWG in PDF, konvertieren Sie DWF in DWG, erstellen Sie 3D-PDF, exportieren Sie Modelle in Google Earth®, importieren Sie .shp-Shapedateien, Importieren/Exportieren Sie STEP- und IGES-Dateien, PDF-Druck, iCADLib mit Tausenden von freien Blöcken, Punktwolkenunterstützung, EasyArch 3D - das kostenlose Architektur-Plugin, Civil-3D-Features sind nur einige der wichtigsten Funktionen, die mit progeCAD verfügbar sind.... Mehr Details
Gewohnte Oberfläche
Mit der der Benutzeroberfläche von progeCAD fühlen Sie sich von Beginn an wohl - dank der Arbeitsbereiche mit klassischen Menüs oder Ribbons sowie Befehlen analog zu AutoCAD®. Weiterlesen...
Zusatzfunktionen
progeCAD ist nicht nur ein umfassendes 2D/3D-CAD-Werkzeug mit allen grundlegenden Funktionen zum Zeichnen, sondern bietet Profis auch eine Vielzahl zusätzlicher Features und exklusive Tools. Weiterlesen...
Vergleich
progeCAD bietet alle wichtigen Funktionen von AutoCAD® und ist auch bekannt für seine praktischen Zusatzwerkzeuge, die kostenlos enthalten sind, um Ihre Produktivität weiter zu steigern. Ihr kostengünstiges CAD-Werkzeug! Weiterlesen...
Flexible Lizenzierung
progeCAD Professional ist mit verschiedenen unbefristeten Lizenzlösungen erhältlich, die für alle Unternehmensgrößen geeignet sind, vom einzelnen Zeichner bis zum Global Player. Weiterlesen...
progeCAD 2026


